Apartament de închiriat cu 3 camere, PACURARI
Prezentare
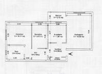
Pacurari-Moara de Foc, langa Autocenter. Amplasat in apropierea Garii, apartamentul recomandat spre inchiriere de agentia imobiliara Central Casa din Iasi este compus din 3 camere, model spatios, decomandat complet, avand o suprafata totala de 60mp, si este compartimentat in camera de zi, bucatarie separata, 2 dormitoare, hol, balcon si baie.
Este situat la etajul 3, intr-o bloc de 4 etaje, scara curata si interfon.
Interiorul are centrala termica proprie, aer conditionat, gresie, faianta. Este mobilat si utilat.
Pret 500 euro/luna. Se doreste plata pe o luna avans, o luna garantie si comisionul agentiei.
Oferta este ideala pentru familii, cupluri tinere sau studenti, care doresc o locatie usor accesibila, pe termen lung, minim 12 luni.
Va intereseaza oferta? Programati o vizionare la telefon 0724033538 - Laura Dumitru.
Detalii
Număr camere |
3 | Construit |
1984 | |
Etaj |
3 | Băi |
1 | |
Etaje clădire |
4 | Balcoane |
1 | |
Suprafaţa (mp) |
60 | Acoperiş |
– | |
Confort |
decomandat | Tip imobil |
Bloc | |
Alte detalii |
gaz, faianţă, curent, centrală, CATV, canalizare, apometre, parchet, gresie, apa |
Oferte similare
-
Apartament de închiriat cu 4 camere, PACURARI€ 550ID: IOA12511
-
Apartament de închiriat cu 2 camere€ 450ID: IOA12432
-
Apartament de închiriat cu 3 camere, Centru-Gara€ 550ID: IOA12545
Contactează agentul: Laura DUMITRU
- Telefon: 0724033538
- office@centralcasa.ro
- centralcasa.ro
- Vânzări pe zonele: Vanzari blocuri noi si inchirieri
- Vezi alte proprietăţi ale agentului
Număr camere